EXCLUSIVE
Fully renovated in 2023, Maison Sapins is a four-bedroom ‘Maison de Pays’ originally constructed as a family summer residence in the 1920s. It stands on almost 1600m² of level ground in Plaine des Praz just a few minutes' stroll from the La Flégère ski area and the Chamonix Golf Club.
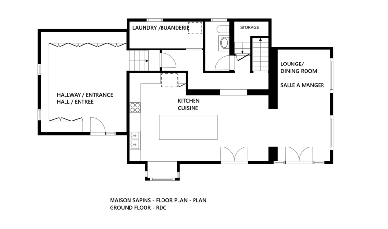
The property is on three floors with the entrance, living/dining room and kitchen all on the ground floor opening out onto the south-facing stone terrace and large garden with fantastic views of Mont-Blanc, Les Drus, Brévent and other famous peaks. The first floor has three ensuite bedrooms and a further lounge/TV area. The top floor is devoted entirely to a luxurious master suite of over 50m² complete with a dressing area and a large bathroom.
The extensive renovation included a new heating system, a new roof and full insulation, inside and out giving the property a DPE rating of A.
Key features
- Recently renovated ‘maison de pays’ with 4-bedroom, 4-bathroom in Plaine des Praz
- 253m² total area including garage with potential of a huge extension of up to 200m²
- 5-minute walk to the La Flégère ski area and golf course. 100m from the main Chamonix bus stop.
- Large, south-west facing flat garden with fantastic views of Mont-Blanc, Les Drus and the other surrounding peaks
- Highly energy-efficient, DPE rating A
Our opinion
This is a beautifully renovated property, reflecting considerable care and style. The owners have successfully preserved the 'Maison de Pays' features while updating it to achieve outstanding thermal efficiency, evidenced by an A rating. The extensive plot offers significant potential for either expanding the main house or constructing a separate amenity building, such as a pool house or gym or could simply be kept as a large flat garden to enjoy.Agency fees
Agency fees are included in the price and payable by the sellerPrint page
Location
Maison Sapins is situated in Les Praz, a 5-minute drive north-east of the centre of Chamonix, and a short walk to the bus stop and to the village of Les Praz and the golf course.The nearest skiing is at Flégère, 800 metres from the chalet. There is a bus stop less than 100 metres away, as well as the train station (650 metres), giving access to each of the ski areas in the Valley.
There are a number of restaurants, bars and shops in Les Praz village and the golf course is just a few minutes’ walk away. Chamonix itself is a pleasant 30-minute walk along the river.
Natural risks
Information about the natural risks in this location is available (in French) on the Géorisques website https://www.georisques.gouv.frFinancials
- Notaire Fees: €293,000
- Taxe Fonciere: €1,291
Technical info
- Estimated energy cost min. (€ pa): €1,051
- Estimated energy cost max. (€ pa): €1,423
- Estimated energy cost reference date: 2021
- DPE report date: 04/12/2025
- Heating: Heat pump
- Roof: Metal roof
- Year of construction: 1927
- Year of renovation: 2023
Further info
- Terrace
- Garden
- Garage
- Orientation: South-west



