A new project of 29 apartments in a chalet style building inspired by Abondance farmhouses, using traditional stone and wooden cladding. This residence is in a sought-after location, perched above central Châtel, offering unobstructed, panoramic views of the valley and mountains. It is only a 150 metres from the Petit-Châtel ski lift, offering excellent access to the ski area. Each apartment comes with a balcony or terrace, a cave and parking. Please note that the kitchen is not included in the price but can be added as an extra through the developer, or a buyer can install their own. These apartments have been completed and are ready to occupy.
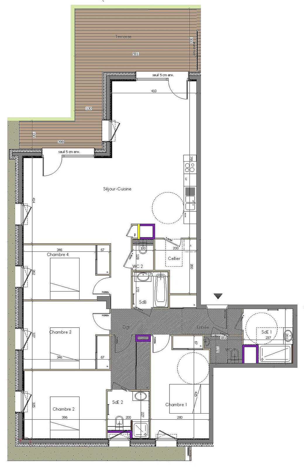
Apartment A002 is a 4 bedroom apartment on the ground floor with 3 bathrooms and a terrace. The apartment is oriented north. Other apartments in this development are available. Please contact us for the full schedule and further information.
Key features
- 4 bedroom 133 m2 apartment
- North facing terrace
- Excellent position in the heights of Châtel with panoramic views
- 150m from ski lift
- Reduced notaire’s fees and potential to reclaim 20% VAT on the price
Our opinion
This development is very close to a ski lift, has excellent views, and is very competitively priced, what’s not to love?Sold subject to co-ownership status
Number of lots: 29
No proceedings in progress
Agency fees
Agency fees are included in the price and payable by the sellerPrint page
Location
Art`Mony is a short 150 m 2-minute walk to the nearest ski lift, and has a small selection of shops, and restaurants in the immediate area. It is just under a 3-minute drive to the centre of Chatel, and has a free bus stop right outside the residence.Natural risks
Information about the natural risks in this location is available (in French) on the Géorisques website https://www.georisques.gouv.frFinancials
- Notaire Fees: €16,600
Technical info
- Heating: Gas
- Hot Water: Communal
- Number of lots: 29
- Facade: Concrete
- Year of construction: 2025
Further info
- Floor: Ground floor
- Terrace
- Parking
- Garage
- Orientation: North

