NEW TO THE MARKET
This 6-bedroom chalet is a renovated former farmhouse located directly on the slopes above Les Gets, offering genuine ski-in ski-out access in a well-established and private setting. Arranged over multiple levels, the property is centred around a double-height living area spanning the full length of the chalet. The renovation retained the original volume and structure of the farmhouse, resulting in generous ceiling heights and well-proportioned rooms throughout.
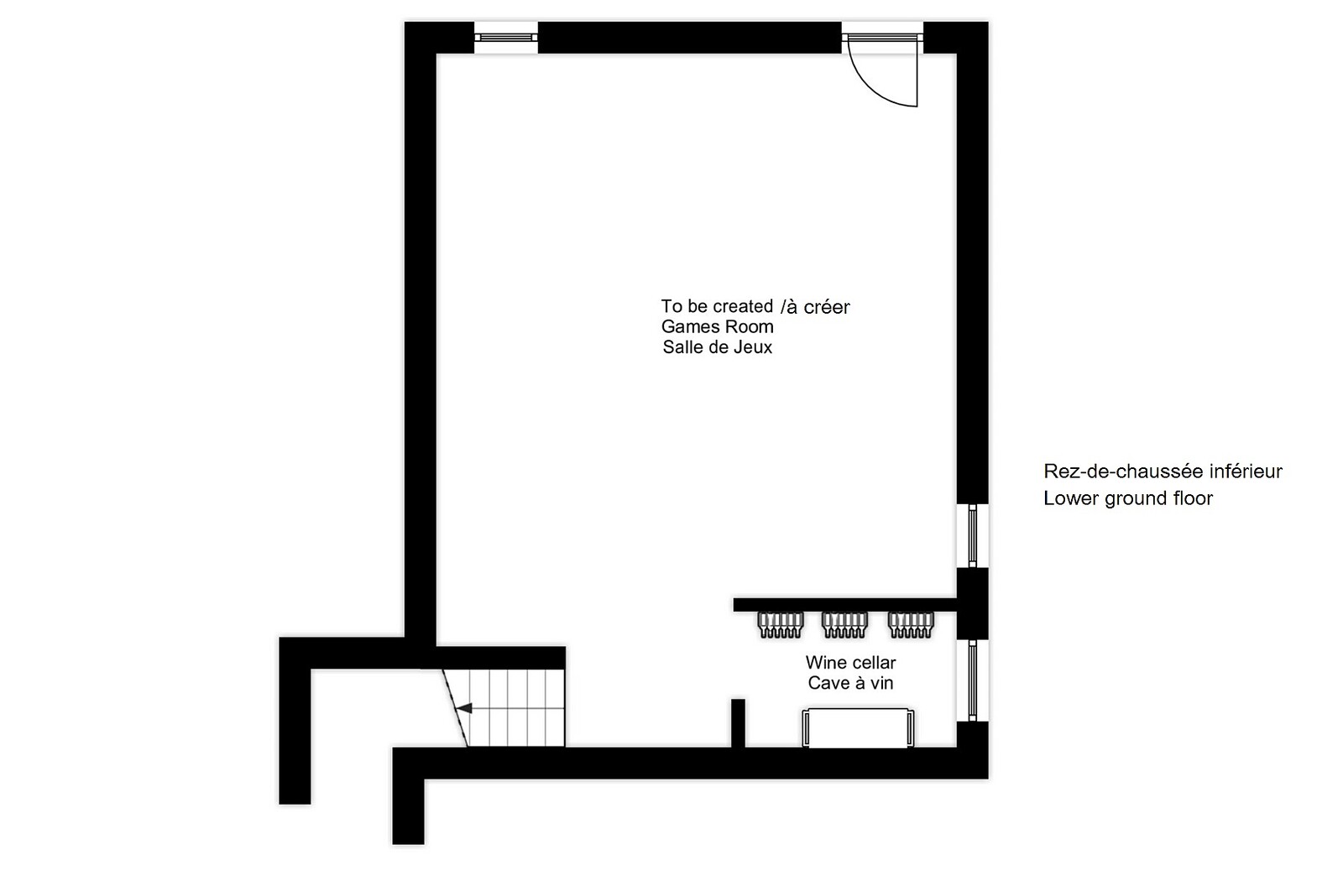
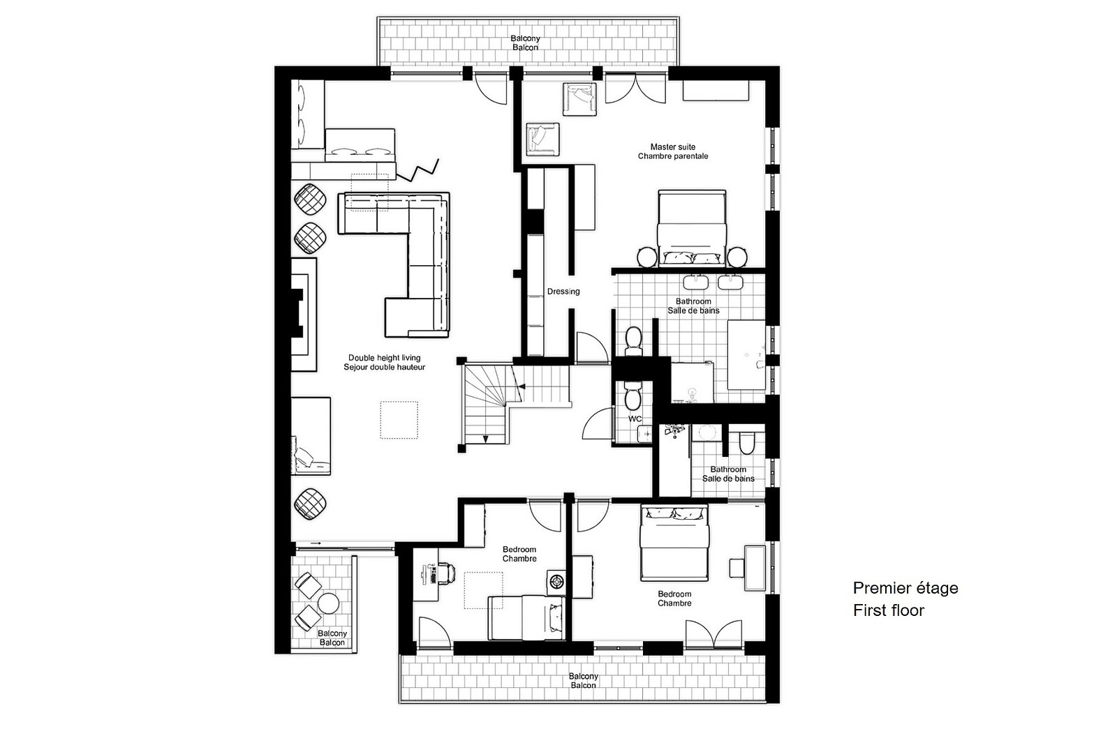
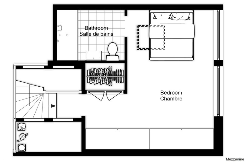
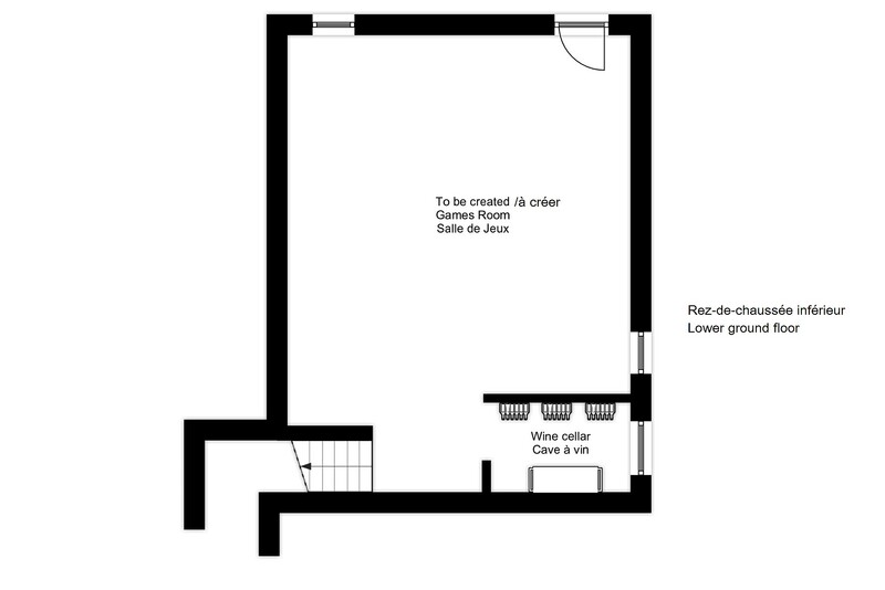
The chalet offers six bedrooms and five bathrooms, including a principal suite with vaulted ceilings, dressing room and private balcony. The lower ground floor provides clear potential to create additional leisure space such as a gym, cinema room or games area, depending on requirements.
Set on a plot of over 2,000m², the property also offers scope for further development, including the possibility of constructing two additional buildings (subject to planning permission).
The chalet is currently presented unfurnished. The interior photographs were taken when the property was previously furnished and are intended to illustrate the scale and layout of the spaces.
Key features
- Direct ski-in ski-out access
- Renovated 6-bedroom, 5-bathroom farmhouse
- Double-height living space
- 2,000m²+ land parcel with development potential (subject to planning)
- Lower ground floor with scope for gym, cinema or leisure suite
Our opinion
A traditional slopeside farmhouse offering scale, privacy and genuine ski-in ski-out access. The generous plot and further building potential add an additional layer of opportunity, making this a compelling option for buyers seeking both lifestyle and long-term value in Les Gets.Location
The chalet is located in the La Turche sector above the centre of Les Gets. Positioned between the Mélèzes and Vorosses pistes, the property provides immediate access to the Perrières Express lift. The village centre, with its shops, restaurants and amenities, is approximately a 15-minute walk away, and the free bus stop — including the night bus — is less than 300 metres from the chalet.
Agency fees
Agency fees are included in the price and payable by the sellerPrint page
Location
The chalet is located in the La Turche sector above the centre of Les Gets. Positioned between the Mélèzes and Vorosses pistes, the property provides immediate access to the Perrières Express lift. The village centre, with its shops, restaurants and amenities, is approximately a 15-minute walk away, and the free bus stop — including the night bus — is less than 300 metres from the chalet.Natural risks
Information about the natural risks in this location is available (in French) on the Géorisques website https://www.georisques.gouv.frFinancials
- Notaire Fees: €241,800
- Taxe Fonciere: €1,800
Technical info
- Estimated energy cost min. (€ pa): €3,520
- Estimated energy cost max. (€ pa): €4,780
- Estimated energy cost reference date: 2021
- DPE report date: 23/10/2023
- Heating: Electric
- Facade: Stone
- Year of construction: 1865
- Year of renovation: 2014
Further info
- Terrace
- Ski Locker




