EXCLUSIVE AND UNDER OFFER
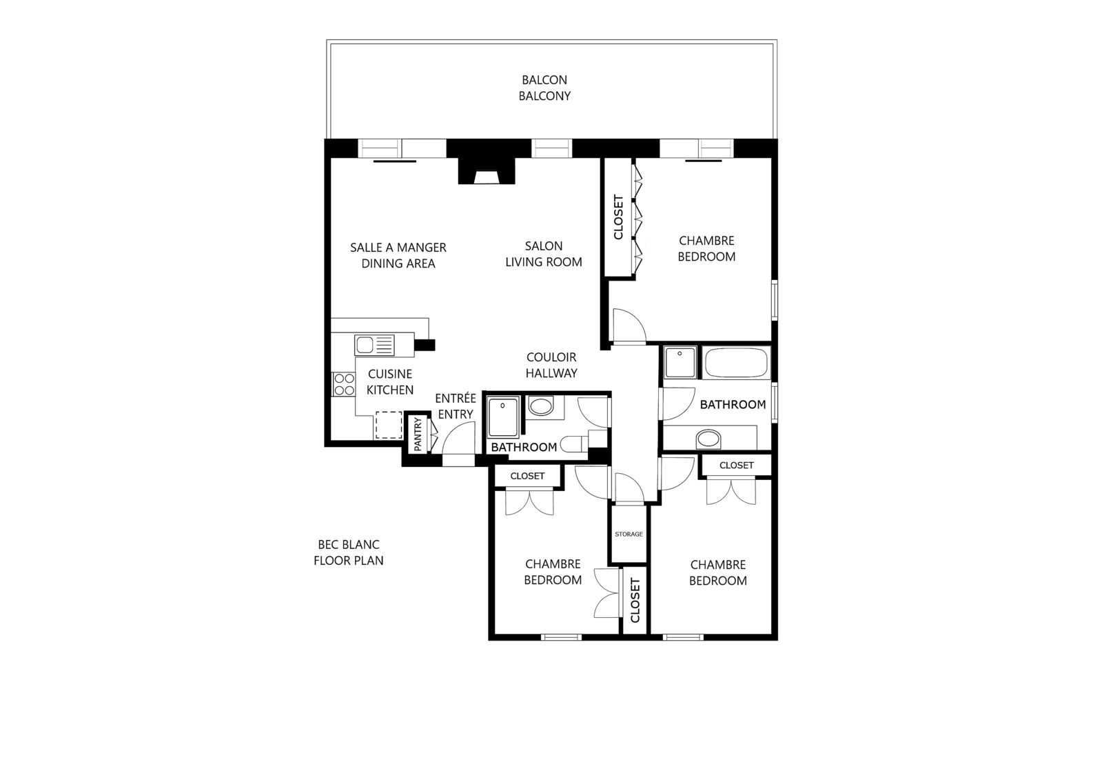
Bec Blanc is a magnificent 3-bedroom 2-bathroom penthouse apartment on the 4th floor of an attractive small apartment building in Montroc, just between Argentière and Le Tour. The apartment has a large, open living space which leads out to a 26m² terrace with incredible views over Mont-Blanc, the surrounding peaks and down the Chamonix Valley.
The property was built in 2003 by the well-known developer MGM and remains in excellent condition with a wood burning stove which is a rare feature in apartments. The apartment is offered with all the furniture included, providing a turnkey property ready to move into. The apartment is served by a lift accessing the 2 ski lockers and 2 caves. There are two private car parking spaces as well as a closed garage in the underground parking.
Key features
- A quality 3-bedroom penthouse apartment in Montroc
- Amazing views from the huge terrace up to Mont-Blanc and down the Chamonix Valley
- Easy access to Le Tour and Argentière's skiing and hiking trails
- Open living area with wood burner and access onto the large terrace
- Two covered parking spaces, closed garage and several storage units
Our opinion
This is a unique property on the last floor of a popular building near the top of the Valley where the views and sunshine hours and fantastic. In this area properties rarely come to the market. It's also close to two of the best ski areas, Les Grands Montets and Le Tour.Agency fees
Agency fees are included in the price and payable by the sellerPrint page
Location
Apartment Bec Rouge is situated in the heart of Montroc, in the North end of the Valley, 20 minutes' drive from Chamonix or 2-minute drive from Argentière. Perfect position for skiing - walkable to Le Tour which connects to Vallorcine, or a short bus ride or drive to Les Grands Montets. For access to public transport you are a 2-minute walk to the Montroc bus and train station. Hiking and bike trails are possible from the apartment almost in every direction.Natural risks
Information about the natural risks in this location is available (in French) on the Géorisques website https://www.georisques.gouv.frFinancials
- Notaire Fees: €98,000
Technical info
- Estimated energy cost min. (€ pa): €2,080
- Estimated energy cost max. (€ pa): €2,830
- Estimated energy cost reference date: 2021
- DPE report date: 06/10/2025
- Heating: Electric
- Number of lots: 33
Further info
- Floor: Fourth
- Terrace
- Ski Locker
- Garage
- Parking (internal)



