Set across four floors, Maison Maurice is a beautiful five-bedroom house located in the charming village of Les Bois. To the south, the property enjoys expansive views of Mont Blanc, while to the east it offers spectacular views of Les Drus.
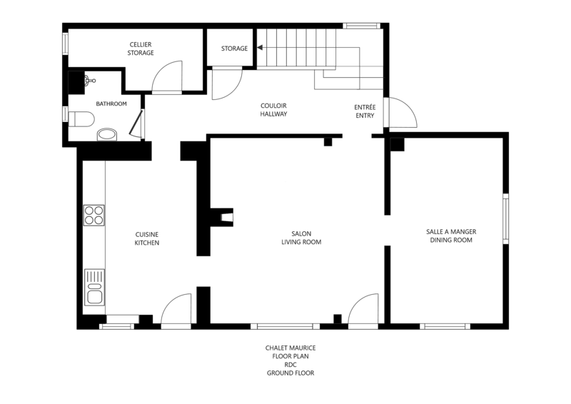
Inside, the house presents a harmonious blend of traditional and modern features. With high ceilings, an original staircase and large, light-filled rooms, Maison Maurice perfectly encapsulates the spirit of a Savoyard townhouse. The ground floor is dedicated entirely to living space, while the second floor comprises three bedrooms, a dressing room and two bathrooms. The top floor was fully renovated in 2025, creating two additional bedrooms and a WC.
There is further potential to enhance the property by utilising the basement, which would lend itself well to a wellness area and a wine cellar with a vaulted ceiling. To the rear of the building, a storage room could be converted perfectly into a practical mudroom.
The gardens wrap around the house and include a traditional mazot, ideal as a children’s playhouse or, alternatively, for conversion into a sauna.
Key features
- 297m² townhouse in the heart of Les Bois village
- High ceilings and beautiful original features
- Potential to convert currently unexploited spaces
- Highly sought after location
- Walking disctance to skiing, golfing and hiking trails
Our opinion
Maison Maurice has a warm, inviting atmosphere—cozy yet spacious, with a real sense of character and history. With a newly insulated roof, new windows and a new balcony due in spring, the property is ready to enjoy. There remains excellent scope to add further value, including the development of the cellar, the creation of a mudroom and laundry, and the conversion of the garden mazot.Agency fees
Agency fees are included in the price and payable by the sellerPrint page
Location
A 5-minute drive north-east of the centre of Chamonix, and a short walk to the bus stop and to the village of Les Praz and the golf course.The nearest skiing is at Flégère, 900 metres from the chalet. There is a bus stop less than 100 metres away, as well as the train station (900 metres), giving access to each of the ski areas in the Valley.
There are a number of restaurants, bars and shops in Les Praz village and the golf course is just a few minutes’ walk away. Chamonix itself is a pleasant 30-minute walk along the river.
Natural risks
Information about the natural risks in this location is available (in French) on the Géorisques website https://www.georisques.gouv.frFinancials
- Notaire Fees: €223,000
Technical info
- Estimated energy cost min. (€ pa): €4,216
- Estimated energy cost max. (€ pa): €5,704
- Estimated energy cost reference date: 2021
- DPE report date: 30/12/2025
- Heating: Fuel oil
- Facade: Concrete
- Year of construction: 1928
Further info
- Cellar
- Orientation: South



