NEW TO THE MARKET AND EXCLUSIVE AND UNDER OFFER
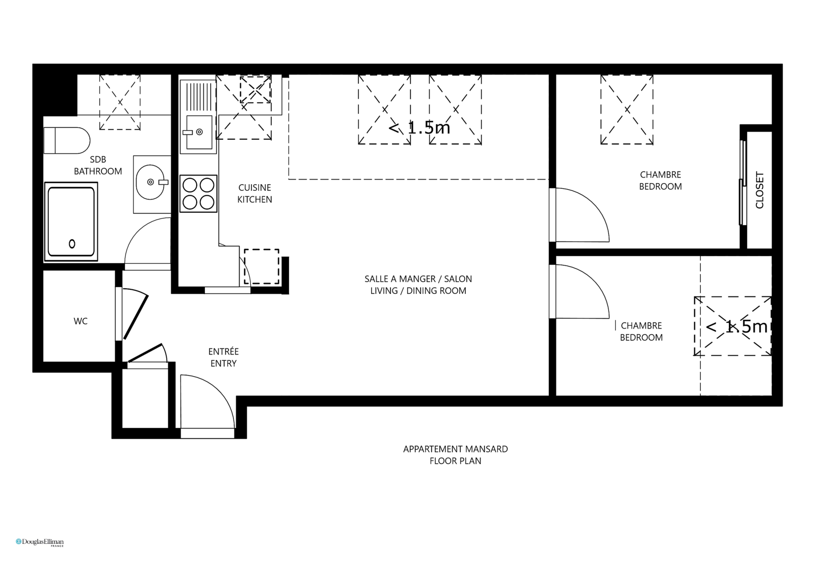
Mansard is a charming, 2-bedroom apartment in the very heart of Chamonix, situated on the top floor of an historic building on the main street. With extra ceiling height in much of the open-plan living space, the apartment is full of character with exposed beams and large, skylight windows revealing the wonderful mountain views.
The apartment has been renovated throughout, including a modern, fully-equipped kitchen and shower room. The building has a lift to all floors and the apartment includes a cave/ski-locker on the ground floor.
The apartment is currently operated as a rental property with an established rental history, which could be continued with the existing agency, or sold with vacant possession.
Key features
- 2-bedroom apartment in the very centre of Chamonix
- Renovated throughout
- Extra height in the living space with exposed beams
- Proven rental history
- Ground-floor storage and a lift to all floors
Mansard is in a great position in the hyper-centre of Chamonix, sitting on the main high street with everything that Chamonix has to offer on the doorstep. The apartment has plenty of character and, with no direct openings onto the street, retains a tranquility despite being right in the centre.
Agency fees
Agency fees are included in the price and payable by the sellerPrint page
Location
LocationMansard is just off Rue Docteur Paccard, the main street in Chamonix itself, a very short walk from Place Balmat. All the shops, bars and restaurants are in the immediate vicinity with a popular bakery within metres of the main door. It is just under 300 metres to the Aiguille du Midi train stop (400 metres to the main train station) with the nearest bus stop just under 200 metres away.
Natural risks
Information about the natural risks in this location is available (in French) on the Géorisques website https://www.georisques.gouv.frFinancials
- Notaire Fees: €38,600
- Taxe d'Habitation: €1,157
- Taxe Fonciere: €741
Technical info
- Estimated energy cost min. (€ pa): €1,280
- Estimated energy cost max. (€ pa): €1,740
- Estimated energy cost reference date: 2021
- DPE report date: 03/11/2025
- Heating: Electric
- Number of lots: 116
- Year of construction: 1981
Further info
- Floor: Fourth
- Ski Locker



